The Green Collection
Project Key Details
Enquire for Latest Promotions
Contact Sales Team for Latest Prices, Floor plans and Balance Units for sale.
Project Information
Overview
The Green Collection is a cluster of 20 villas located at 24 to 60 Cove Drive, in the exclusive Sentosa Cove enclave. Completed in 2013, this project is one of the few ultra-luxury housing options available in the country, offering a perfect blend of privacy, luxury, and resort-style living. Developed by the renowned Garcha Group and designed by RT+Q Architects, each villa contains four levels, a basement, and an attic. Setting a new standard for high-end properties in Singapore, The Green Collection is truly the epitome of today’s waterfront luxury living.Â
Location and Accessibility
Situated in the heart of the exclusive Sentosa Cove, The Green Collection enjoys a coveted position in the prestigious District 4, one of Singapore’s most sought-after enclaves, renowned for its luxury homes and exclusivity. Shuttle buses and the monorail take residents across Sentosa Gateway and into HarbourFront MRT Interchange for easy access into the North-East and Circle lines.Â
Residents with vehicles enjoy excellent connectivity, with major expressways such as the Ayer Rajah Expressway (AYE), Central Expressway (CTE), and East Coast Parkway (ECP) easily reached in minutes, allowing smooth travel to the Central Business District, Orchard Road, and other key destinations.Â
Nearby Amenities and Lifestyle Choices
Singapore’s largest shopping mall, VivoCity, is a short drive away, and residents can also access the amenities on the mainland by taking a short ride on the frequent shuttle bus or the monorail. Other malls like HarbourFront Centre and 100 AM are also within a short drive. Families with children will appreciate the proximity to reputable schools like Cantonment Primary School, Chij (Kellock), and Radin Mas Primary School. International schools such as Knightsbridge House International School and North London Collegiate School (Singapore) are also conveniently accessible.
For the active resident, the recreational opportunities around Sentosa Cove are endless. Watersports enthusiasts can go kayaking, paddleboarding, and sailing, while golf lovers will enjoy one of the two award-winning championship courses around the island. Sentosa is also home to many upscale dining, wellness, and spa facilities, seamlessly blending waterfront adventures with tranquil surroundings.Â
Developer Profile
The brains behind The Green Collection is Elevation Developments Pte Ltd, a subsidiary of the Garcha Group, a highly respected developer known for its innovative, top-quality projects in Singapore. With an impressive portfolio that includes acclaimed developments like The Vagabond Club, Serangoon House, and Maxwell Reserve, the group specializes in developing luxury residential projects, like some Good Class Bungalows in prime areas. Their commitment to quality and design excellence is evident in one of their recent successful projects, The Green Collection, a cluster of ultra-luxury villas in the exclusive Sentosa Cove.
Summary
The Green Collection at Sentosa Cove comprises an exclusive cluster of 20 luxury villas, each spanning four levels and featuring a resort-style, state-of-the-art interior design. Developed by Elevation Developments, it comes with sophisticated architecture, top-quality interiors, and meticulously landscaped surroundings, offering a truly luxurious living experience in one of Singapore’s most prestigious neighbourhoods.
Nearby Amenities
Shopping malls nearby:
- VivoCity – 2.8 km
- HarbourFront Centre – 3.0 km
- 100 AM – 3.7 km
MRT stations nearby:
- Harbourfront (NE1 CC29) – 3.0 km
- Tanjong Pagar (EW15) – 4.0 km
- Telok Blangah (CC28) – 4.3 km
Primary schools nearby:
- Cantonment Primary School – 3.7 km
- Chij (Kellock) – 3.7 km
- Radin Mas Primary School – 3.9 km
Secondary schools nearby:
- Chij St. Theresa’S Convent – 4.0 km
- Outram Secondary School – 4.9 km
- Bukit Merah Secondary School – 5.5 km
International schools nearby:
- Knightsbridge House International School – 4.9 km
- Integrated International School – 4.9 km
- North London Collegiate School (Singapore) – 5.3 km
Tertiary education institutions nearby:
- Melior International College – 3.8 km
- London School of Business and Finance Singapore – 4.3 km
- Duke-NUS Medical School – 4.3 km
Hospitals and clinics nearby:
- KLINIK AZZAHRA CHINI – 980 m
- Podiatry Quest – Harbourfront – 3.0 km
- Nuffield Dental | Dentist @ HarbourFront – 3.1 km
Recreational areas nearby:
- Tanjong Beach – 704 m
- Palawan Beach – 1.6 km
- Sentosa Beaches – 1.6 km
Map Location
Gallery
Videos
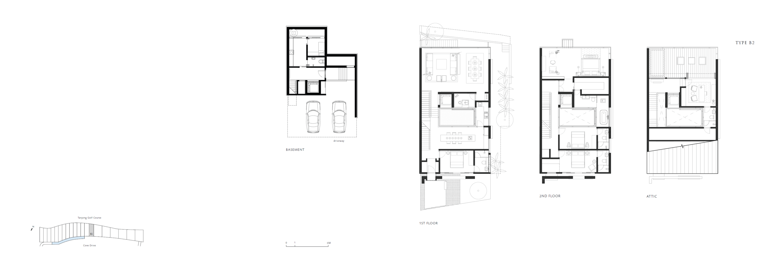
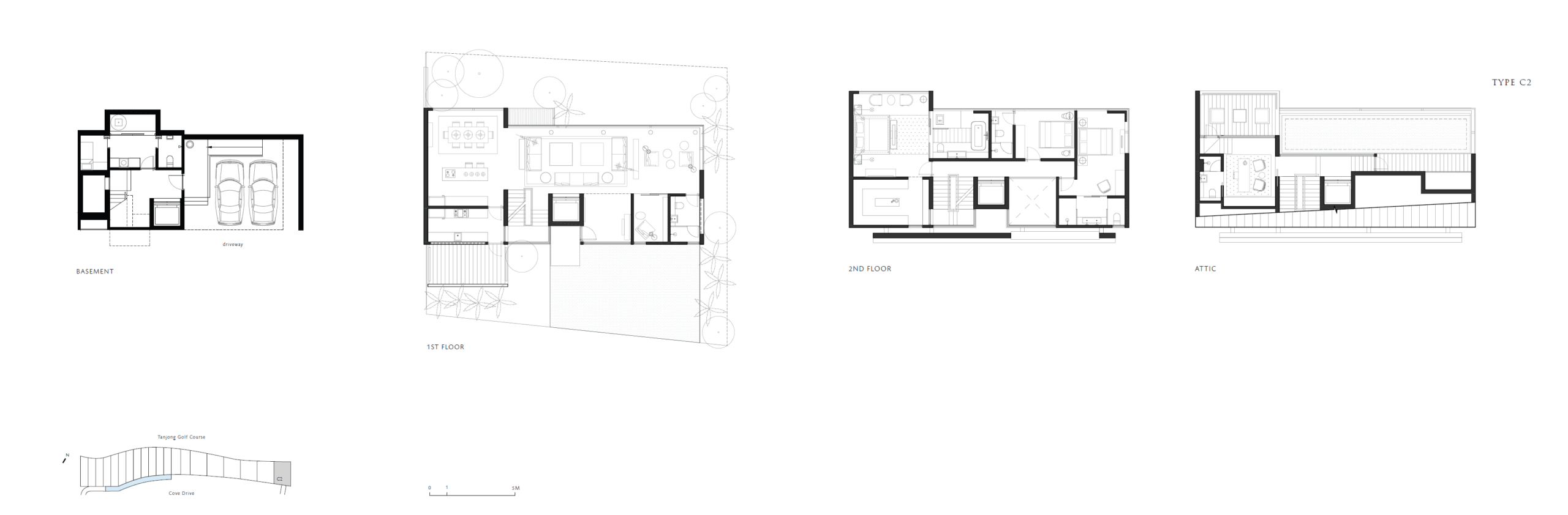
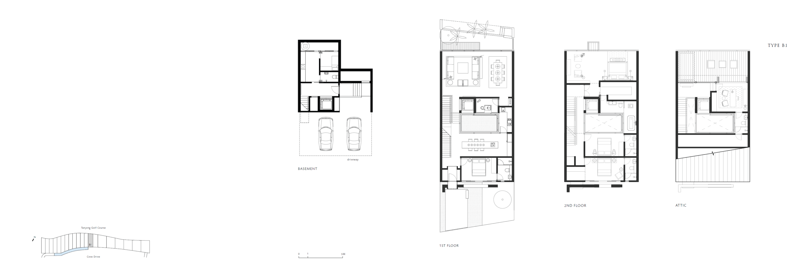
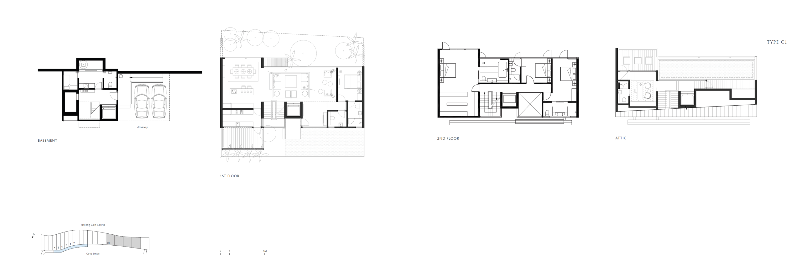
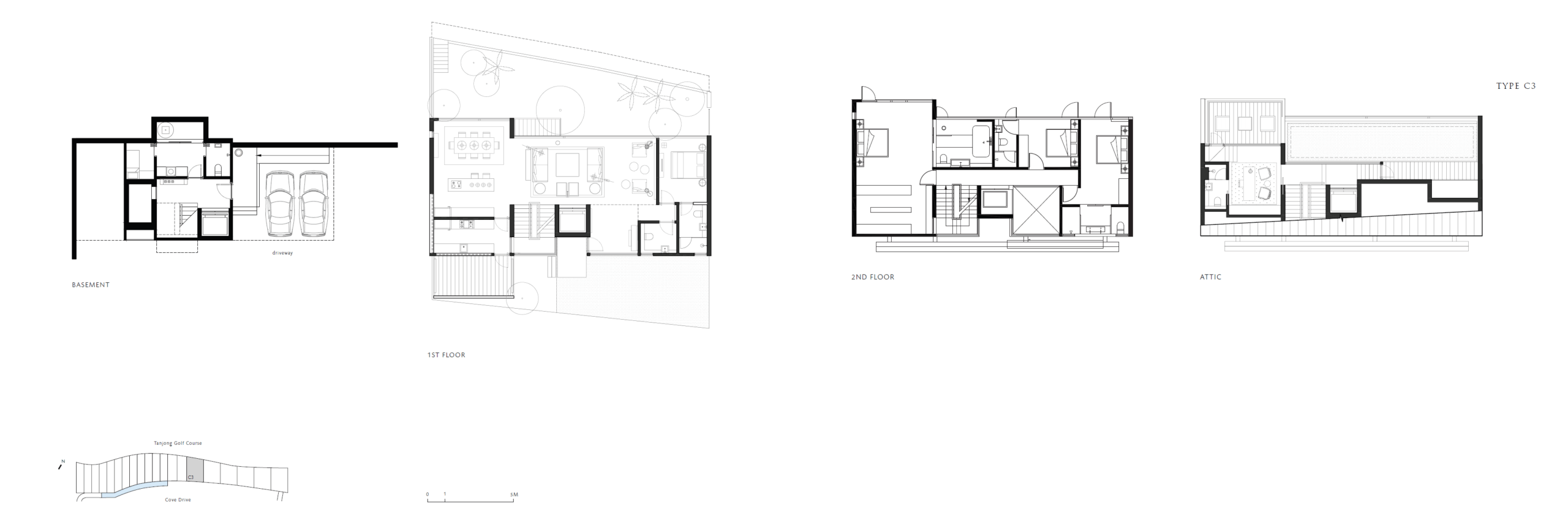
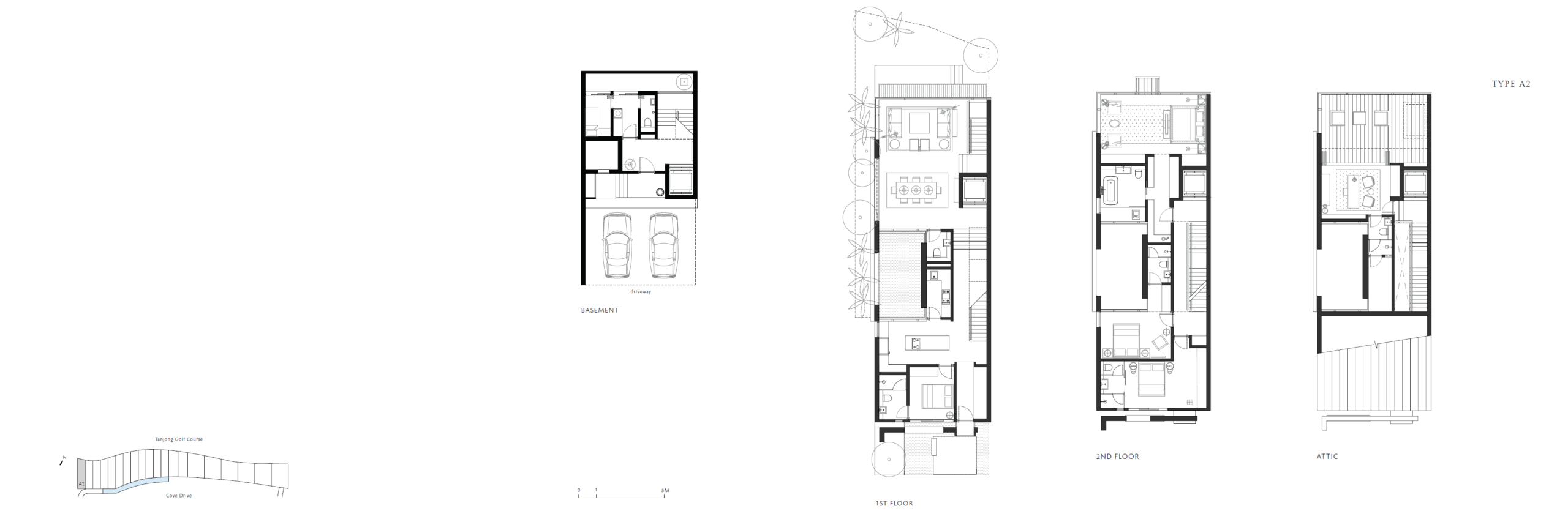
Floorplans Overview
Floorplan Overview
| Bedroom Type | Available Units |
|---|---|
| Landed | 20 |
Landed
A1
5,823 sqft
A2
6,157 sqft
B1
6,114 sqft
B2
5,942 sqft
C1
6,555 sqft
C2
7,169 sqft
C3
6,986 sqft
MRT Station Nearby
Primary Schools Nearby
Enquire for Latest Promotions
Contact Sales Team for Latest Prices, Floor plans and Balance Units for sale.











