Cape Royale 御丰轩
Project Key Details
Enquire for Latest Promotions
Contact Sales Team for Latest Prices, Floor plans and Balance Units for sale.
Project Information
Overview
Cape Royale is a luxury condominium development located at 11 and 25 Cove Way in the exclusive Sentosa Cove enclave. With an estimated 302 units in eight towers, this is one of the most prominent residential projects on Sentosa Island. Inspired by coral formations, its striking architecture emphasizes curved facades, natural light, and cross-ventilation, while maximizing panoramic sea views. Well-connected to the city via Sentosa Gateway and HarbourFront MRT, Cape Royale offers a rare blend of waterfront tranquility and convenient urban access in one of the country’s most prestigious waterfront communities.
Location and Accessibility
Cape Royale is located in District 4, in the highly sought after Sentosa Cove neighbourhood known for its exclusivity, luxury, and tranquil surroundings. Harbourfront MRT station is on the mainland and can be access by monorail or shuttle bus, giving residents quick entry into the North-East and Circle lines.
The development is also well-served by major expressways, including the Central Expressway (CTE) and Ayer Rajah Expressway (AYE), ensuring smooth connectivity to the Central Business District and other parts of Singapore.
Nearby Amenities and Lifestyle Choices
VivoCity, Singapore’s largest shopping mall, is a short drive away, offering residents plenty of choices for dining, entertainment, daily essentials, and retail. HarbourFront Centre and 100 AM are also within a short drive. The area is home to many reputable schools like Cantonment Primary and CHIJ (Kellock). Secondary and international schools such as CHIJ St. Theresa’s Convent and Integrated International School are also easily accessible.
Sentosa Island is criss-crossed with paths for biking and walking. Residents and visitors can enjoy pristine beaches like Siloso, Palawan, and Tanjong, and golf enthusiasts can go to the award-winning Sentosa Golf Club. Adventure seekers can explore attractions such as Skyline Luge, Mega Adventure Park, and iFly Singapore.
Developer Profile
Cape Royale is being developed by Pinnacle (Sentosa) Pte Ltd, a joint venture between Ho Bee Land Limited and IOI Properties Group Berhad. Ho Bee Land, listed on the Singapore Exchange in 1999, has a global portfolio of luxury residential, commercial, and industrial projects like Turquoise and Seascape. IOI Properties Group, a prominent Malaysian public-listed developer, brings nearly four decades of experience in property development, investment, and hospitality across Malaysia, Singapore, and China. Together, their combined force will create an exceptional waterfront residential development, Cape Royale.
Summary
Cape Royale is a prestigious waterfront condominium located at Cove Way in Sentosa Cove, Singapore’s most exclusive residential enclave. Rising with eight iconic towers of 16 to 20 storeys, it offers 302 luxurious apartments designed to capture panoramic views of the South China Sea and marina. The architecture draws inspiration from coral formations, blending elegance with functionality. Residents enjoy a resort-like lifestyle surrounded by beaches, a golf course, and upscale dining. With seamless access to HarbourFront MRT and the city, Cape Royale combines tropical tranquility with cosmopolitan convenience in a truly luxurious setting.
Nearby Amenities
Shopping malls nearby:
- VivoCity – 2.8 km
- HarbourFront Centre – 3.0 km
- 100 AM – 3.3 km
MRT stations nearby:
- Harbourfront (NE1 CC29) – 3.0 km
- Tanjong Pagar (EW15) – 3.5 km
- Shenton Way (TE19) – 3.7 km
Primary schools nearby:
- Cantonment Primary School – 3.3 km
- Chij (Kellock) – 3.5 km
- Radin Mas Primary School – 3.7 km
Secondary schools nearby:
- Chij St. Theresa’S Convent – 3.9 km
- Outram Secondary School – 4.5 km
- Gan Eng Seng School – 5.2 km
International schools nearby:
- Integrated International School – 4.4 km
- Knightsbridge House International School – 4.7 km
- Ascensia International School – 5.2 km
Tertiary education institutions nearby:
- Melior International College – 3.3 km
- London School of Business and Finance Singapore – 3.8 km
- Stansfield College – 3.9 km
Hospitals and clinics nearby:
- KLINIK AZZAHRA CHINI – 1.1 km
- Podiatry Quest – Harbourfront – 3.0 km
- Nuffield Dental | Dentist @ HarbourFront – 3.1 km
Recreational areas nearby:
- Tanjong Beach – 1.2 km
- Palawan Beach – 1.9 km
- Sentosa Beaches – 1.9 km
Map Location
Gallery
Videos
Site Plan
Elevation Chart
Floorplans Overview
Floorplan Overview
| Bedroom Type | Available Units |
|---|---|
| 3BR | 67 |
| 4 Bedroom | 8 |
| 4BR | 9 |
| Penthouse (3BR + Study) | 3 |
| Penthouse (3BR) | 2 |
3BR
A1
1,722 sqft
A1g
1,905 sqft
A2
1,905 sqft
A2g-2
2,077 sqft
A2g-3
1,970 sqft
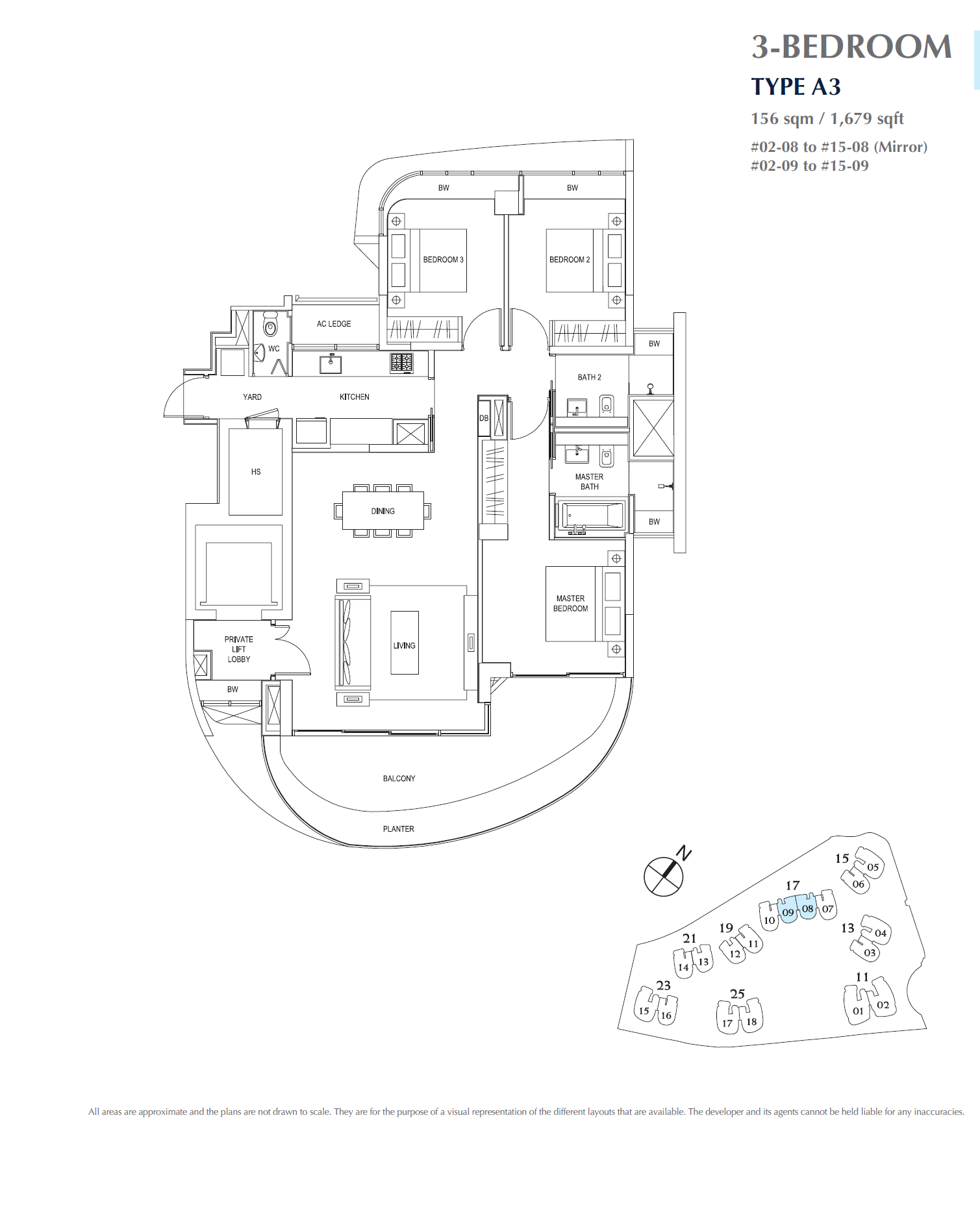
A3
1,679 sqft
A3g
1,884 sqft
4 Bedroom
B1 Stack 4
2,508 sqft
4BR
B1
2,508 sqft
B1g-1
2,637 sqft
B2
2,530 sqft
Penthouse (3BR + Study)
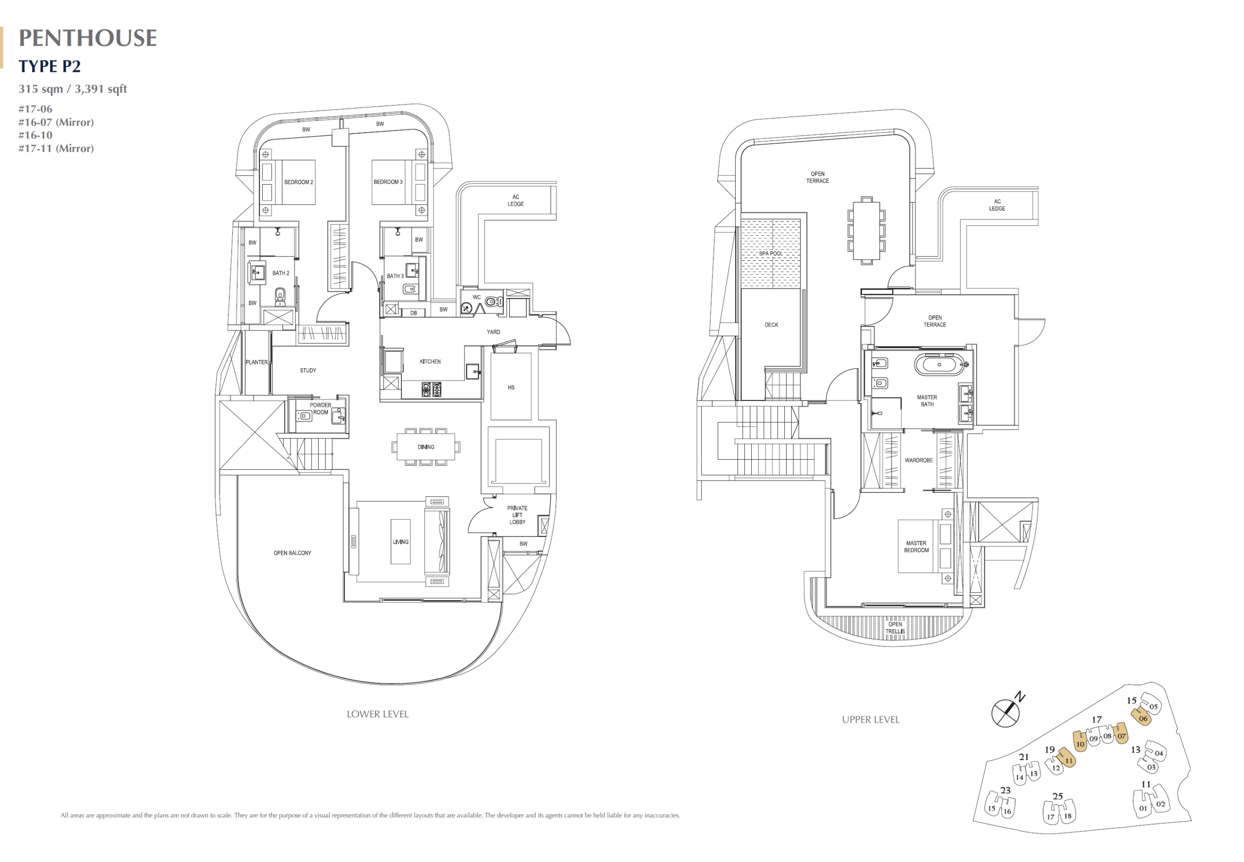
P2
3,391 sqft
Penthouse (3BR)
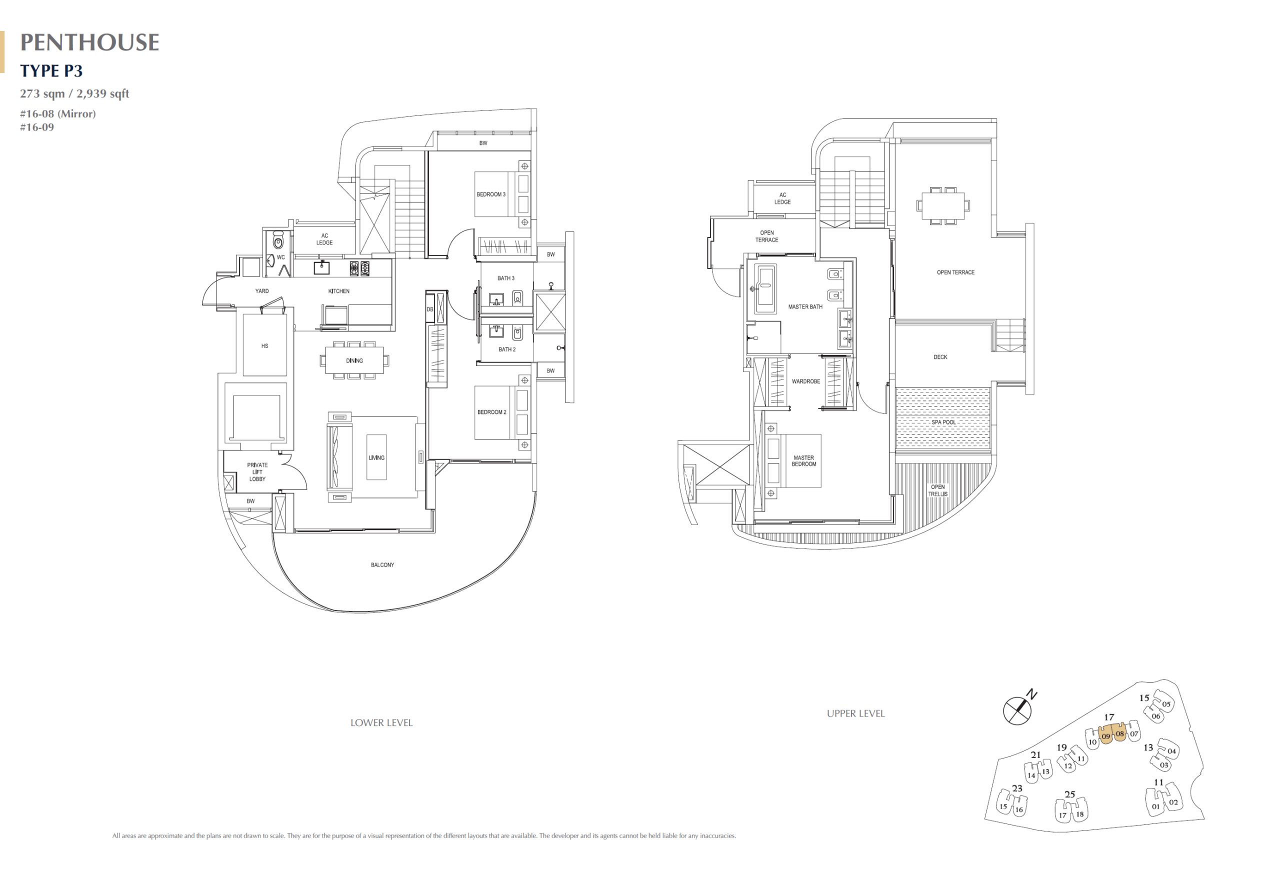
P3
2,939 sqft
MRT Station Nearby
Primary Schools Nearby
Enquire for Latest Promotions
Contact Sales Team for Latest Prices, Floor plans and Balance Units for sale.




















































